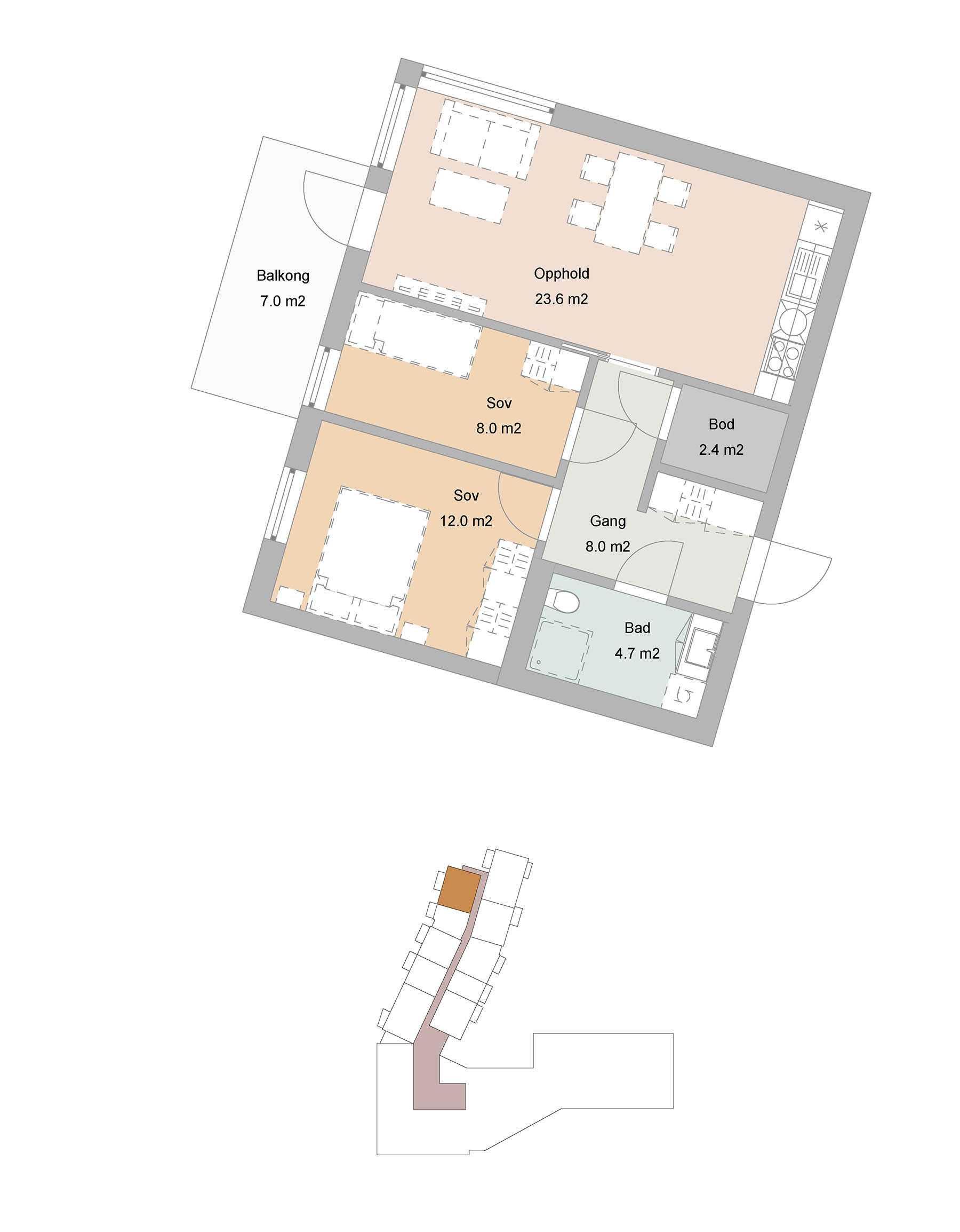
41_24877_h0305.jpg

H0305

ETG: 3
BRA-I: 62.8
BRA-E: 5
BRA-B:
SUM-BRA: 68
PARKERING: 1
SOV: 2

PRIS: 5 086 800
STIFTELSE: 15 000
OMK: 1 350
INNSKUDD: 2 543 400
FELLESGJELD: 2 543 400
TOTALPRIS: 5 103 150

FELLESKOSTNADER: 14 352

STATUS: LEDIG

Det er mulig å velge individuell nedbetalingsordning (IN). Med denne ordningen kan du kjøpe ut leiligheten og kun betale din andel av borettslagets drift og vedlikehold.

Felleskostnader dekker driften av borettslaget, kommunale avgifter, oppvarming, forbruk av varmt og kaldt vann, samt fellesgjeld renter og avdrag.



PRISLISTE

1 ETG ← →

2 ETG ← →

STATUS LEILIGHET SUM-BRA TOTALPRIS BRA-I BRA-E BRA-B PARKERING SOV PRIS OMK INNSKUDD FELLESGJELD F.KOSTN. STIL
LEDIG H0201 53 3 942 650 49.7 3.2 1 2 3 926 300 1 350 1 963 150 1 963 150 11 150 Skogbunn
SOLGT H0202 54 4 083 200 49.9 4 1 2 4 066 850 1 350 2 033 425 2 033 425 11 457 Skogbunn
SOLGT H0203 60 4 141 450 49.7 5 5.2 1 2 4 125 100 1 350 2 062 550 2 062 550 11 567 Skogbunn
LEDIG H0204 43 3 520 950 35.4 2.5 5 1 1 3 504 600 1 350 1 752 300 1 752 300 9 429 Lin
SOLGT H0205 77 4 796 750 64.6 5 7 1 2 4 780 400 1 350 2 390 200 2 390 200 13 813 Skogbunn
LEDIG H0206 43 3 520 950 35.4 2.5 5 1 1 3 504 600 1 350 1 752 300 1 752 300 9 429 Lin
SOLGT H0207 59 4 007 600 51.5 2.5 5 1 2 3 991 250 1 350 1 995 625 1 995 625 11 391 Skogbunn
SOLGT H0208 76 4 910 750 64.4 5 7 1 2 4 894 400 1 350 2 447 200 2 447 200 14 041 Skogbunn
SOLGT H0209 96 7 205 950 83.6 7.5 5 1 3 7 189 600 1 350 3 594 800 3 594 800 19 984 Jord
LEDIG H0210 89 6 946 850 83.5 5 1 3 6 930 500 1 350 3 465 250 3 465 250 19 434 Jord
LEDIG H0211 58 4 648 850 54.5 3 1 2 4 632 500 1 350 2 316 250 2 316 250 12 913 Skogbunn
LEDIG H0212 88 6 855 150 83.4 5 1 3 6 838 800 1 350 3 419 400 3 419 400 19 235 Jord
LEDIG H0213 53 3 816 350 50.0 2.5 1 1 3 800 000 1 350 1 900 000 1 900 000 10 902 Himmel
LEDIG H0214 53 3 801 150 49.8 3 1 1 3 784 800 1 350 1 892 400 1 892 400 10 858 Himmel
LEDIG H0215 44 3 633 150 41.1 2.5 1 1 3 616 800 1 350 1 808 400 1 808 400 9 997 Lin
LEDIG H0216 68 4 851 950 62.8 5 1 2 4 835 600 1 350 2 417 800 2 417 800 13 824 Skogbunn
LEDIG H0217 88 6 549 650 82.7 5.5 1 3 6 533 300 1 350 3 266 650 3 266 650 18 553 Jord
LEDIG H0218 69 4 781 950 64.4 5 1 2 4 765 600 1 350 2 382 800 2 382 800 13 771 Skogbunn
LEDIG H0219 67 4 633 950 62.4 5 1 2 4 617 600 1 350 2 308 800 2 308 800 13 343 Skogbunn
LEDIG H0220 38 3 308 550 35.4 2.5 1 1 3 292 200 1 350 1 646 100 1 646 100 8 983 Lin
LEDIG H0221 69 4 695 650 64.1 5 1 2 4 679 300 1 350 2 339 650 2 339 650 13 572 Skogbunn

3 ETG ← →






    
gse.svg
hh.svg